

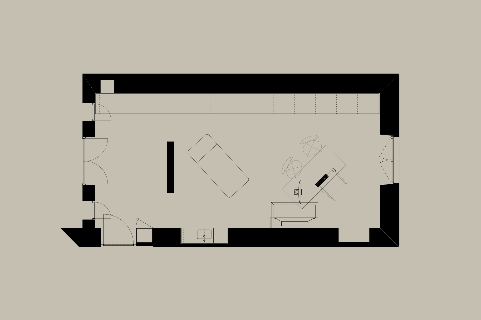
Le cabinet de chirurgie plastique du Docteur Sophie Ayach est installé dans un bel appartement du centre-ville de Grenoble. Nous y avons rénové la salle de consultation.
LA SURFACE DE LA RENOVATION EST MODESTE, MAIS CONCENTRE UNE PALETTE D’EMBELLISSEMENT DU SOL EN POINTE DE HONGRIE AU STAFF DES PLAFONDS.
L’existant est une pièce de 30m2 environ ayant subi des rénovations de qualité moyenne. Les murs sont en toile de verre de couleur vive, le mobilier triste, Les goulottes et les installations électriques mal ajustés. Le tout disposé sans cohérence d’ensemble. Comme souvent, nous sommes repartis d’une feuille blanche.
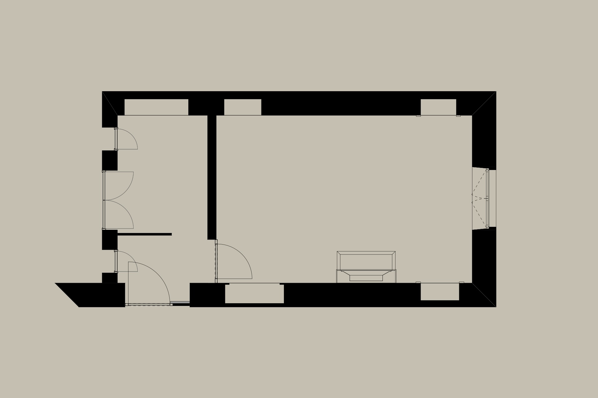
Sur les murs lisses, les cimaises et les panneautages de chez ORAC forment un calepinage digne des plus grands Haussmanniens. On retrouve ces profils appliqués au plafond formant un encadrement au bords arrondis. D’un point de vue technique, nous avons revu l’’ensemble de l’installation électrique, caché le tableau électrique et le compteur de gaz dans un placard. Le coté fonctionnelle n’est pas en reste avec un linéaire de paillasse stratifié laiton.
L’installation d’éclairage à été entièrement repensé par le bureau d’étude de Del Éclairage. On retrouve sur le plan de travail les spots Laser Blade en version trimless centrés sur les panneautages. Sa miniaturisation est tel qu’il est à peine perceptible, seul le faisceau lumineux taillis sa présence













