


La réussite d’un projet de construction se mesure aussi à sa faculté d’intégration dans son environnement. Ici la nouvelle maison est pensée en fonction de l’ensoleillement et du panorama.
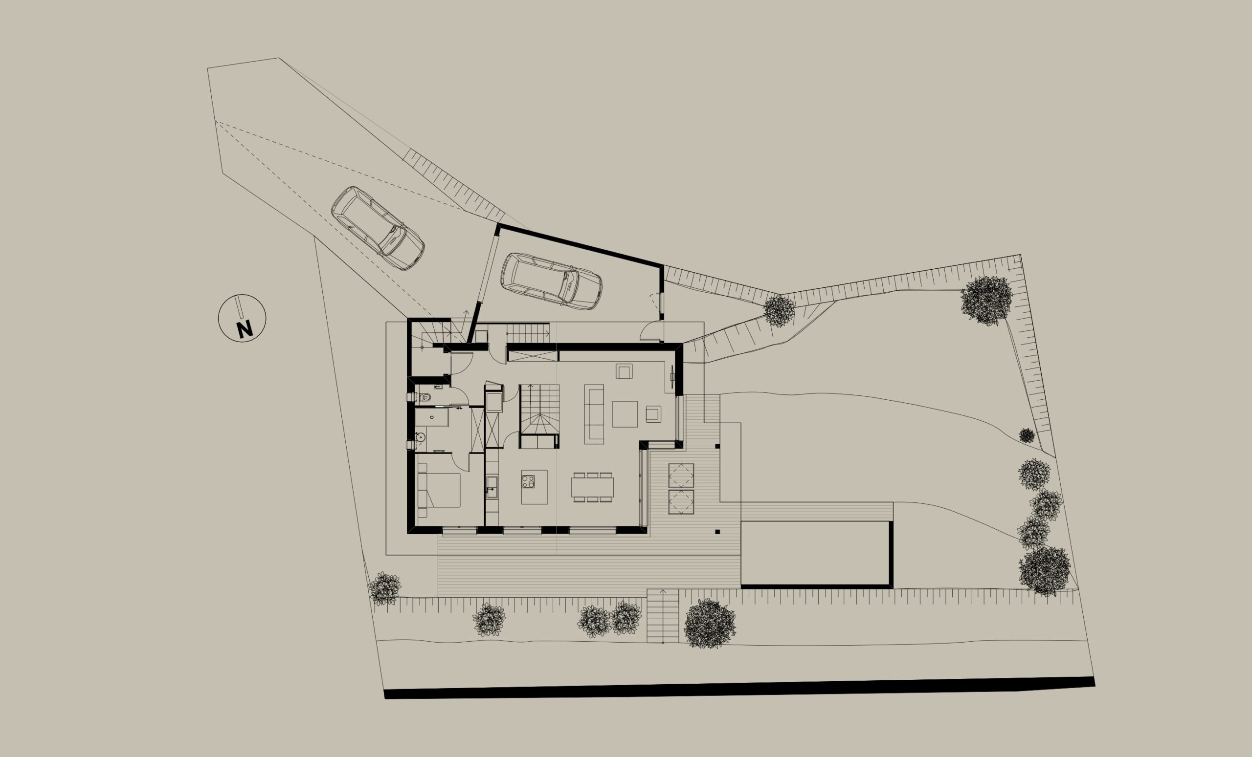
L’analyse de la topographie est essentielle pour une implantation cohérente dans le contexte paysagé. Ici nous avons privilégié une architecture en demi-niveaux pour apprivoiser le dénivelé. Sur l’arrière, le garage et le rez de jardin sont à moitié encastré dans le terrain. Sur l’avant la terrasse se prolonge en porte à faux au-dessus d’un talus sur la partie avec une orientation sud-est face à la vue dégagée sur le Néron, au cœur du massif de la Chartreuse.
La suite de la conception est basée sur des principes simples, à savoir de grandes ouvertures sur l’angle sud-est ou l’on retrouve les pièces de vie principales. La toiture se prolonge pour couvrir la terrasse et apporter une protection solaire naturelle l’été et laisser rentrer les rayons du soleil plus bas l’hiver.




Le projet est dicté par l’architecture de montagne avec une touche de modernité
On retrouve ici les techniques de construction propre à l’environnement montagnard avec une maison en pignon coiffée d’une toiture 2 pans avec de grands débords en bois. Dans le même logique, les façades mélangent enduit traditionnel et bardage en mélèze, avec une touche de modernité amenée par un cadre aluminium autour des fenêtres.
L’intérieur est pensé en prolongement de l’extérieure pour ne former qu’un ensemble. Les baies vitrées apportent du style et de la lumière aux intérieurs. Sur les façades bien orientées, les murs sont percés par de généreuses ouvertures. L’alternance des châssis fixes minimalistes et des châssis coulissants judicieusement placé combine la vue sur la nature environnante et une circulation directe vers l’extérieur.




